HanMinhHang House Renovation
投放时间: 2025-04-13 08:00:00
HanMinhHang House | Một ngôi nhà cải tạo đầy bất ngờ
Địa điểm: Hà Nội
Diện tích: 132m2
Năm: 2024
S LA architect
Thiết kế: Nguyễn Xuân Khương, Lê Thành Lam, Nguyễn Đức Tuấn Anh, Nguyễn Quang Duy, Nguyễn Mĩ Hạnh, Trần Thị Lan, Lê Đình Thanh
Thi công: Phạm Văn Đạt
Ảnh: Abluebird
————————————————————————
|VN|
HanMinhHang House | Một ngôi nhà cải tạo đầy bất ngờ
Gia chủ, founder “Xéo xọ” - một thương hiệu thời trang nổi tiếng, mong muốn cải tại lại công năng và ánh sáng cho ngôi nhà cũ đã xây dựng từ nhiều năm trước.
Nằm trong một con ngõ nhỏ tại Hà Nội, nhưng diện tích thửa đất rộng rãi so với các ngôi nhà lân cận. Khối nhà cũ cũng đã được đặt ở vị trí hợp lý, chừa lại phần sân trước nhà hướng Nam đón gió.
Đề bài đặt ra cho nhóm kts, làm sao để thay đổi công năng phù hợp với hiện tại, và cải thiện được ánh sáng cho phần phía sau nhà, đang tối và bức bí.
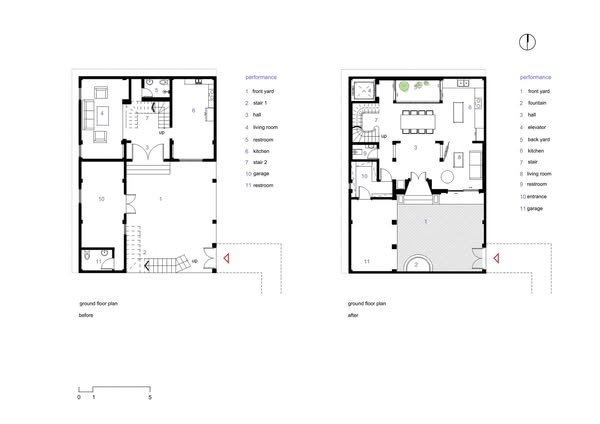
Tận dụng lợi thế khoảng sân trước rộng rãi, mặt bằng cải tạo tầng trệt “villa” hơn, có nhiều hơn một lối giao thông vào nhà. Khách tới chơi nhà, có thể bước vào từ sảnh chính, còn gia chủ khi sinh hoạt hàng ngày, qua gara để xe, qua phòng thay giày, restroom khi đi làm về. Việc sắp xếp công năng hợp lý, có khoảng đệm, phòng chứa đựng, giúp ngôi nhà gọn gàng và sạch sẽ hơn.
Các không gian sinh hoạt ở tầng trệt: khách, bếp, ăn… được liên thông, tạo cảm giác rộng rãi, dù kích thước hạn chế do bị giới hạn bởi lưới cột cũ. Giếng trời cuối nhà, mang lại ánh sáng và cảm giác thư thái, trái ngược hẳn với hiện trạng trước cải tạo.
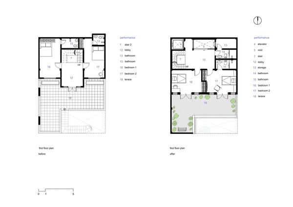
Lầu 1 bao gồm phòng ngủ ông, phòng ngủ con gái, và đặc biệt: một khoảng sân thoáng đãng phía trước.
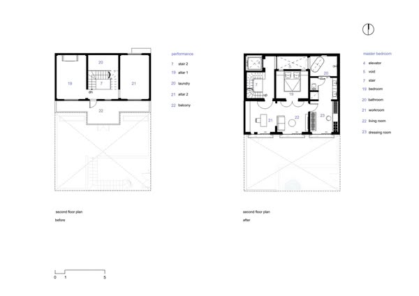
Lầu 2 toàn bộ là không gian master, bao gồm: làm việc, ngủ, thay đồ, phòng tắm. Tất cả các khu chức năng đều tiếp cận được ánh sáng tự nhiên.
Lầu 3 bao gồm một phòng ngủ cho khách, phòng giặt và phòng thờ.
Làm trong ngành thời trang, dễ hiểu khi gia chủ biến đổi ngôi nhà mới không chỉ hợp lý về công năng, mà còn toát lên cá tính riêng. Vật liệu hoàn thiện sân, ốp lát phòng tắm, đèn trang trí… đều được lựa chọn kỹ lưỡng.
Vượt qua khó khăn về kết cấu và nền móng hiện trạng, team thiết kế & thi công của S LA đã cơi nới, “đại phẫu” thành công. Những hình ảnh before - after khiến mọi người trầm trồ ngạc nhiên!
————————————————————————
|EN|
HanMinhHang House | A Remarkable Renovation Full of Surprises
The owner, founder of Xéo Xọ—a well-known fashion brand—sought to revamp both the functionality and lighting of their long-standing home.
Tucked away in a narrow alley in Hanoi, the property boasts a spacious plot compared to neighboring houses. The original structure was well-positioned, leaving a south-facing front yard that invites natural breezes.
The challenge for the design team was twofold: to adapt the layout to better suit the owner's current needs and to enhance natural lighting at the rear of the house, which was previously dark and cramped.
By leveraging the generous front yard, the ground floor layout was reimagined with a more "villa-like" feel, introducing multiple entry points. Guests can enter through the main foyer, while the owner enjoys a more practical route via the garage, passing through a shoe-changing area and restroom upon returning home. Thoughtful space planning, with designated buffer zones and storage areas, ensures a tidy and organized living environment.
The ground floor seamlessly connects the living, kitchen, and dining areas, creating an open and airy atmosphere despite the constraints imposed by the existing structural grid. A skylight at the rear now floods the space with natural light, dramatically transforming what was once a dim and oppressive area.
The first floor accommodates the grandfather’s bedroom, the daughter’s bedroom, and notably, a spacious front terrace that provides a refreshing outdoor retreat.
The second floor is dedicated entirely to the master suite, incorporating a workroom, bedroom, dressing area, and bathroom—all designed to maximize natural light and ventilation.
On the third floor, a guest bedroom, laundry room, and altar room complete the home’s functional program.
Given the owner's background in fashion, it is no surprise that the renovation goes beyond practical improvements to reflect a strong personal aesthetic. Every detail, from courtyard materials to bathroom finishes and decorative lighting, has been carefully curated.
Overcoming structural and foundation challenges, the S LA design and construction team successfully executed an extensive transformation. The striking before-and-after images leave no doubt—this is a renovation that truly amazes!
搜索关键词 House renovation Hanoi, modern home design, interior architecture, functional space planning, natural light optimization, residential transformation, before and after renovation, Vietnamese architecture, personalized home aesthetic, S LA architect design优势 Improved functionality,Enhanced natural lighting,Personalized aesthetic,Optimized space utilization
展示估值
560616
热度
46215
最新发现时间
2025-04-13 08:00:00
投放天数
210
素材信息
素材类型
素材尺寸
主页ID8289873642116856394
主页名字SLA architect
产品信息
适用范围
人民币汇率走势
CNY
关注我们

新媒网跨境发布
本站原创内容版权归作者及NMedia共同所有,未经许可,禁止以任何形式转载。

粤公网安备 44011302004783号 



