Vernon Pumping Station Preservation
投放时间: 2025-04-17 08:00:00
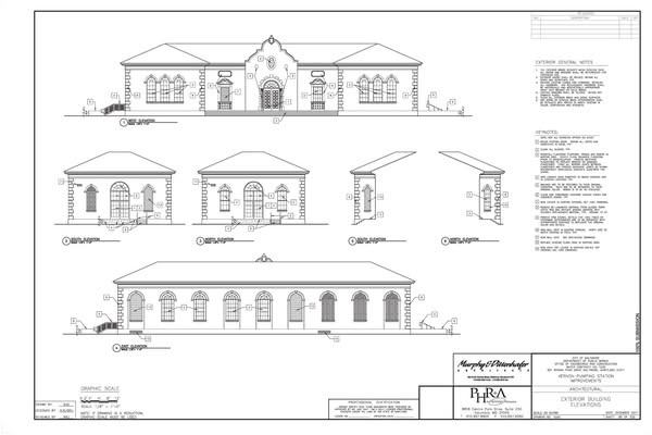
Architectural historic preservation is flowing at this circa 1930 pumping station originally designed by Frank O. Heyder. 💧
In its Spanish Revival/Neo-Georgian aesthetic, the 35,000-square-foot Vernon Pumping Station is a key component of the Baltimore Municipal Water Utility System, located at the foot of the Druid Hill Reservoir and separated by the Jones Falls Expressway.
If you drive this route to and from Baltimore, you've surely done a double-take in awe of the attractive building. 😲
Murphy & Dittenhafer Architects is providing Architectural and Preservation expertise on a major infrastructure project, supporting and reviewing the work of Whiting-Turner Contracting Company.
From rehabilitating the brick and terra-cotta masonry to refurbishing the verde-green Spanish tile roofing—from preserving the terrazzo flooring in the operations room to the stone tile flooring in the pump well—M&D is working hard to highlight the building's history while simultaneously supporting a safer structure for the modern era. 🧱
搜索关键词 architectural historic preservation, Vernon Pumping Station, Baltimore infrastructure, Murphy Dittenhafer Architects, Spanish Revival architecture, water utility system, preservation expertise, building rehabilitation, terra-cotta masonry, historic building renovation优势 Historical Preservation Expertise,Infrastructure Project Support,Aesthetic Enhancement,Safety enhancement for modern era
展示估值
127493
热度
11265
最新发现时间
2025-04-17 08:00:00
投放天数
210
素材信息
素材类型
素材尺寸
主页ID8289873642116799672
主页名字Murphy & Dittenhafer Architects
适用范围
人民币汇率走势
CNY
关注我们

新媒网跨境发布
本站原创内容版权归作者及NMedia共同所有,未经许可,禁止以任何形式转载。

粤公网安备 44011302004783号 



