Accounting Firm Office Space Design
投放时间: 2024-12-09 08:00:00
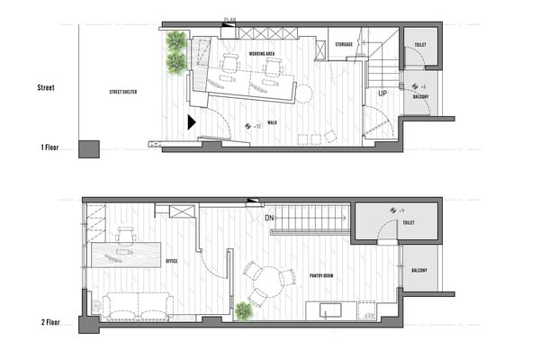
Accounting firm / Project 2023 C04
Kaohsiung Taiwan
辦公室空間 / 中古屋(複層) / 20坪
#秄澄設計
#zichengdesign
#interiordesign
--
詳細說明:
https://ssur.cc/dCqottda7
IG:
https://ssur.cc/ig_zichengdesign0723
Website:
https://www.zichendesign7.com/
搜索关键词 accounting firm design, office interior, Taiwan design, Kaohsiung office, renovation project, interior design services, office space planning, commercial interior design, 秄澄設計 interior, modern office design优势 Professional design for office space,Experienced in renovation projects,Located in Kaohsiung, Taiwan,Focuses on space optimization (20坪/approx. 66 sq meters)
展示估值
28917
热度
2500
最新发现时间
2024-12-09 08:00:00
投放天数
210
素材信息
素材类型
素材尺寸
主页ID8289873642118166849
主页名字秄澄設計 zichengdesign
适用范围
人民币汇率走势
CNY
关注我们

新媒网跨境发布
本站原创内容版权归作者及NMedia共同所有,未经许可,禁止以任何形式转载。

粤公网安备 44011302004783号 



